3480 Pebble Hill DriveMarietta, GA 30062
Due to the health concerns created by Coronavirus we are offering personal 1-1 online video walkthough tours where possible.




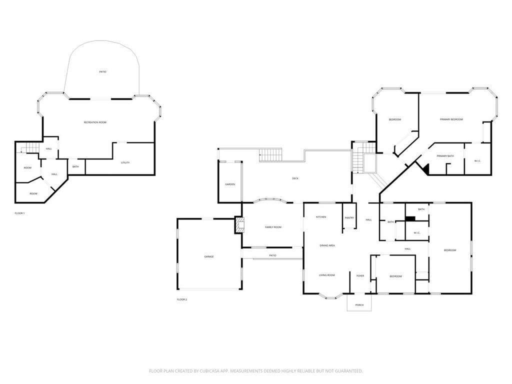
Welcome to Woodbine Station – One of Cobb’s Most Mature and Sought-After Neighborhoods If you’re looking for a home that offers true versatility, look no further. This unique floor plan features an oversized primary suite, plus a second luxurious master suite on its own private wing — perfect for guests, multi-generational living, or extended family. The finished terrace level provides endless possibilities: entertain with ease, create a separate living area, or design the ultimate recreation space. Nestled on a quiet cul-de-sac lot, this home offers serene beauty and privacy while remaining conveniently close to top-rated schools, shopping, and everyday amenities. Featuring 5 bedrooms and 3½ baths, with an open kitchen and dining area, this home is designed for both comfort and functionality. Whether you need space for multiple families or want flexible living options, this well-loved home delivers exceptional value and opportunity. As an extra added bonus, the garage offers a large workshop area and there is a separate detached outbuilding as well. **Be sure to view the drone photo and floor plan sketches as it is impossible to photograph this home in single pic due to the size** Welcome home to Woodbine Station, where charm, convenience, and community come together.
| 2 days ago | Status changed to Active | |
| 2 days ago | Listing updated with changes from the MLS® | |
| 6 days ago | Listing first seen on site |
Listings identified with the FMLS IDX logo come from FMLS and are held by brokerage firms other than the owner of this website and the listing brokerage is identified in any listing details. Information is deemed reliable but is not guaranteed. If you believe any FMLS listing contains material that infringes your copyrighted work, please click here to review our DMCA policy and learn how to submit a takedown request.
© 2017-2025 First Multiple Listing Service, Inc.
Did you know? You can invite friends and family to your search. They can join your search, rate and discuss listings with you.